4月16日,浦口城南中心海信慧园公开了售楼处及样板间。项目拟建5栋17层小高层住宅,户型建面约89平(两种)、107平,放风价约3.2万/平,精装交付没有升级包,预计5月首开!

值得注意的是,项目是区域目前首个拥有双会所小区,外立面有颜值颇高的玻璃幕墙,楼盘景观面积约1.5万㎡,包括中心水系、阳光草坪、儿童活动等9大组团景观,还有450米长环形漫步道串联景点。
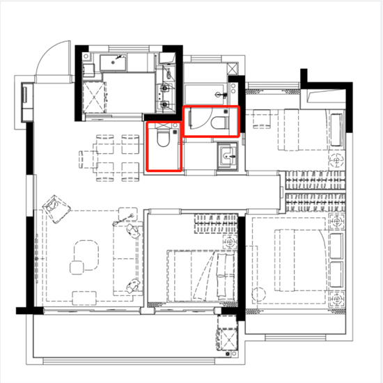
另从精装和户型来说都颇具诚意,比如精装交付包含空调、地暖、新风系统、电视背景墙、玄关柜等,未来入住很便利;同时户型上89平A户型做了1.5卫,相当于新增了一个马桶,对二胎或三代同堂家庭来说很友好。

整体来看,项目无论是外立面、景观配置还是会所,未来宜居舒适度都较高,同时开发商还给购房人贴心考虑到了装修和户型。项目入手门槛预计在280万左右,刚需刚改购房人可关注!
户型: 3居室
地址:东至现状,南至现状,西至迎江路,北至康安路
宜居生态
您将在第一时间获取南京的楼盘打折、降价、开盘等楼盘动态信息