上宸云际由新城、旭辉和天安三大品牌房企强强联合开发,规划打造9栋25-27F高层住宅,主力户型建面约89㎡、101㎡以及121㎡,毛坯限价24100元/㎡,无额外的精装包。

整体来看,上宸云际的项目定位更偏年轻化,打造有BLOCK封面入口、浪漫式森林归家体系,充满仪式感;社区内打造有时下流行的共享式沉浸剧场、花园式单元景观等等4重惊喜,在以往花园式景观的基础上更具层次感。
不仅如此,为了让业主更加贴近自然,上宸云际的社区内还设置有儿童成长空间、青年活力空间、长者精彩空间三大全龄主场,各个年龄段的人群,都能够在社区中找到适合自己的休闲空间。

除此之外,项目还有诸多人性化的细节配置,比如设置了无障碍入户、室外驱蚊灯、面部识别入户、自动识别车辆管理系统轻智能社区等等细节,十分贴心。
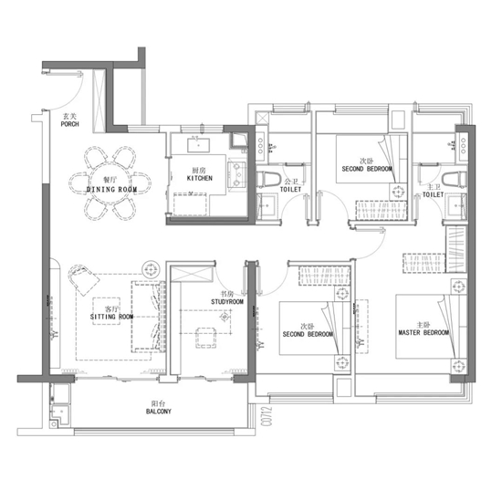
户型方面,上宸云际也是精准把握时代潮流,打造建面约89—121㎡全龄精装双阳台3房、4房户型,LDK餐客厨一体,横摆格局放大生活领域,多空间南向布局,视野、采光得天独厚。
具体来看,建面约89㎡户型为三房两厅一卫的设计,南北通透,三开间朝南布局,搭配朝南双阳台,更好的地保障室内的采光效果,同时营造MAX宽幕景观视野。LDK餐客厨一体化空间,居家动线一气呵成,轻松打造动静分离效果,居住空间更享私密。

建面约101㎡户型为三房两厅两卫的设计,户型方正,南北通透,朝南双阳台搭配景观飘窗,无形中拓宽了室内空间,给予生活更多一份休闲。主卧套房设计,自带衣帽间与卫生间,更享私密。

建面约121㎡户型为四房两厅两卫的设计,全明户型,南北通透,同样为朝南双阳台配置。相对来说,四房的设计增加了功能性,不管是二胎家庭,还是三代同堂需求都能够满足,真正实现“一步到位”。

根据确切消息,纯新盘上宸云际为精装交付,无额外精装包配置,目前装修虽然还没有确定,但中央空调、地暖、新风三大件齐全,品牌也多选用高仪、杜拉维特、威能、西蒙、方太等知名品牌,性价比还是很高的。(具体装修标准以开发商合同为准)
户型: 3居室 / 4居室
地址:江宁正方中路与将军大道交汇处
地铁沿线宜居生态
您将在第一时间获取南京的楼盘打折、降价、开盘等楼盘动态信息