华昌金沙一品预计4月首开
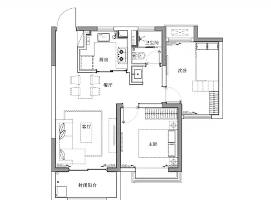
华昌金沙一品预计4月首开,建筑面积约79、97、110、135㎡,全装修限价3万/㎡。
2023年06月21日

华昌金沙一品预计4月首开,建筑面积约79、97、110、135㎡,全装修限价3万/㎡。
2023年06月21日

华昌金沙一品位于顶山街道浦乌路以南,珍珠街以西,立足江核,坐拥国际健康城配套,背靠老山国家森林,依傍珍珠泉的绝美风景,拥有绝佳的资源底板。
2023年06月13日

华昌金沙一品项目前身为健康城G88地块,在2020年12月被华昌以底价27.2亿元拿下,楼面地价12903元/㎡,毛坯限价2.8万/㎡。
2021年12月16日

华昌金沙一品项目住宅部分共打造24栋总高10-18层的高层,户型建筑面积约79、98、110、135㎡,毛坯限价2.8万/㎡,含包放风约3.2万/㎡左右
2021年12月15日

华昌金沙一品正式公开售楼处和110、135㎡样板间。项目打造24栋总高10-18层的高层住宅,两栋总高56米、14层的酒店,同时还有多栋3-4层的商业街区。
2021年12月12日

华昌金沙一品项目共打造了24栋总高10-18层的高层住宅,还将打造7万方主题性商业配套,包括两栋总高56米,14层的酒店,多栋3-4层的商业街区。
2021年12月10日

华昌金沙一品由上海华昌企业打造,共24栋10-18F低密住宅,从效果图来看,有楼栋设置景观架空层,大面积的玻璃立面非常有质感。
2021年11月16日

华昌顶山G88地块案名定为“华昌金沙一品”,项目共打造24栋总高10-18层的高层住宅,两栋总高56米、14层的酒店,同时还有多栋3-4层的商业街区。
2021年11月16日